为什么绿城“娃哈哈”敢做这么大的户型 | 房叔好房020

奥体核心区的奥映鸣翠确实猛,均价接近8.7万元/㎡,户型大到225-350㎡,结果还是一房难求。不得不说,核心区就是核心区,这号召力没谁了。
不过再往南、往西一点点,到被称为“世纪城南”或“市北西”的地带,情况就有点不一样了。

绿城在世纪城南的丽香庭率先开盘,均价5.4万/㎡,149㎡起步,差不多800万的门槛,可以说是临近奥体这一片的最低门槛了。
最终中签率27.81%,首开剩下4套没卖完。有人说这价格偏高了,但说实话,放开限价之后,市场本来就该这样:卖得动、但也留点余地。

丽香庭楼幢图
丽香庭首开楼栋位置不错,最近二开,4号楼领证,因为受东边高楼遮挡,位置应该说是差一点点,价格也下来了一点点,约5.3万元/㎡。
价格策略上完全遵循着“进可攻退可守”,丽香庭这波操作,营销总可以打满分。

限价放开之后,杭州楼市定价越来越看想象力。核心区和非核心区、甚至相邻板块之间,价差越拉越大。
奥映鸣翠站稳8万+,丽香庭5.4万元/㎡试了试世纪城南的水温,接下来,就轮到绿城在市北西的“娃哈哈”地块晓澜玉华轩登场了,预计示范区将在10月开放。
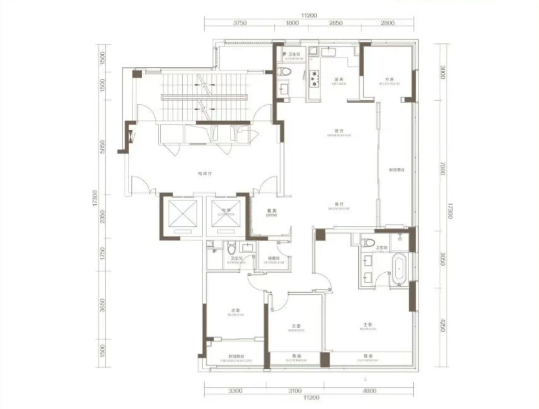
至于同样的185+㎡选丽香庭还是晓澜玉华轩,可以对比下两个户型,区别还是比较明显的。丽香庭是边厅设计,晓澜玉华轩是南厅设计。

上图为晓澜玉华轩186㎡户型示意图
下图为丽香庭185㎡户型示意图

有意思的是,晓澜玉华轩放风价在5.5万/㎡左右,直接对标丽香庭。就算这样,它还是做了185㎡起步,直接卡在1000万级别门槛上。那么问题来了:它凭什么这么敢?

关于市北西、北干、世纪城南那一片一窝蜂做大户型的神仙打架场面我一直不太理解,一个限价不到4万元/㎡的地方,次新二手房还频繁破发的地方,怎么就敢?
后来仔细分析了非限价市场的定位、定价逻辑,同板块下不同的小区域和不同的产品将会产生明显的价差。对晓澜玉华轩敢做高层185㎡、217㎡、238㎡、241㎡的面积,叠墅237-364㎡的面积,突然就有点理解了。
首先,位置确实是硬实力。晓澜玉华轩离奥体莲花碗就约2公里,和钱江世纪城核心区只隔一条河,吃奥体和滨江购买力的外溢算是“近水楼台”。
跟世纪城南的丽香庭、或者市北东的竞品比,它离奥体和滨江更近,属于市北西板块里位置靠西、靠北的,小区域里没有硬伤,这点优势还是很实在的。
其次,配套也跟得上。项目处在两条河交汇处,河景还是有看点的,跑个步散个步都很美。
地铁有15号线丰二路站(在建)和7号线明星路站,不算近,但也在步行可达范围;
商业方面,南侧规划了市北目前的大配套龙湖天街,北侧1公里左右就是已开业的奥体印象城。
再加上周边娃哈哈总部、英冠乐创中心、微医等一批办公楼,产业人群和购买力是有支撑的。
再加上绿城品牌和产品上的发力。限价时代结束之后,品质说话的分量更重了。晓澜玉华轩更多的细节还没有透露,从目前已经出街的设计来看,品质是在线的。
高层层高做到3.15米。公区也舍得投入,直接把1号楼和2号楼的底部做了8.2米挑空,拉出130米的超长沿街界面,还请来朱炳仁做铜艺照壁,据说成本百万级。朱大师最近在房产界的出镜率还挺高。看得出来,是想靠产品差异甩开限价时期那批房子。

晓澜玉华轩外立面效果图过程稿
不过最关键的可能还是这一带,1000万级、180㎡以上户型目前几乎是空白。而这里的客群又很明确:一边是滨江改善外溢,一边是萧山本地实力派,购买力都没得说。晓澜玉华轩瞄准的,正是这群人。

所以结论就很简单了:
晓澜玉华轩敢做这么大,不是因为头铁,而是因为它卡的位置、对的客群、加上产品差异化,正好切中了一个细分市场。
按照绿城品质兑现的能力,晓澜玉华轩去化没什么问题,无非定价略高略低,去化略快略慢而已。


这两个月市北西、北干、世纪城南有一堆大户型要上市,比产品、比操盘、比速度,开发商的金九银十首轮考试要开始了。
具体选择可以看之前的推文《世纪城南、市北、北干的改善“血拼” | 房叔好房No.14》,等浩运府、松川境示范区出来,我们继续评测。


(扫码咨询新房选择、二手房买入时机和房源筛选服务)
本文仅代表作者个人观点。
楼盘名 | 面积 | |||
金沙湖 | 青森 | 127-135 | 33999 | 48 |
银湖 | 颐萃别院 | 95-97 | 17648 | 92 |
临平新城 | 春棠雅韵府 | 240-310 | 43010 | 12 |
楼盘名 | 面积 | |||
安琪儿 | 咏印明庐 | 205-245 | 78259 | 9.10 |
临平新城 | 汀南学仕府 | 101-132 | 28865 | 9.10 |
| 2025杭州楼盘图(9月版) |
![]() |
请扫描添加上方微信获取地图大图 |
